Wc colț: posibilitatea de a rezolva problema lipsei de
O toaletă compactă de colț poate fi o alegere excelentă atunci când aranjați o baie combinată dintr-o zonă relativ mică. Desigur, astfel de produse au propriile caracteristici, dar în instalare și în serviciu nu sunt mult mai complicate decât modelele standard.
În articolul nostru vom descrie în detaliu toaletele din colț și vom oferi sfaturi privind alegerea și instalarea acestora.

Pro și contra designului
Colțul toaletei compacte, care, de obicei, este montat în bai apropiate, prin designul său este aproape la fel ca produsele standard. Atât forma bolului, cât și mecanismul de golire sunt utilizate exact la fel, deci cu alegerea corectă a modelului, nivelul de confort nu va fi redus exact.
Această soluție tehnică are câteva avantaje semnificative:
- în primul rând, instalarea dispozitivului în colț vă permite să minimalizați dimensiunea "zonei moarte", care este de obicei formată în spatele unei toalete standard cu cisternă compactă. Desigur, poate fi folosit pentru a stoca diverse lucruri ca o mătură sau mop, dar, în orice caz, câștigul în zona va fi foarte util.

- În al doilea rând, Rezervorul de colț pentru toaletă poate lua mai puțin spațiu. În același timp, volumul suplimentar face ca dispozitivul să fie mai convenabil.
- treilea, Instalarea unui astfel de produs într-o baie separată eliberează spațiu suficient pentru a instala o chiuvetă mică sau bidet. Și se poate face chiar și într-o toaletă standard a unui bloc de locuințe fără reamenajare.

În ciuda tuturor celor de mai sus, există o soluție și dezavantaje:
- Încercarea de a instala o toaletă de la colț într-o toaletă standard nu duce la rezultatele dorite: câștigul zonei va fi minim, dar, în același timp, picioarele unei persoane așezate se vor odihni de un perete.
- De asemenea, trebuie să aveți grijă când instalați produse de tip articulat: masa cisternei în forma plină este destul de mare, astfel încât să nu poată fi montată pe nici un perete. Gips-carton, de exemplu, nu poate rezista.
Sfat! Dacă totuși doriți să faceți instalarea unei astfel de structuri cu propriile dvs. mâini, atunci trebuie să întăriți ipoteca din lemn în avans pentru placarea plăcilor de ipsos. Este de dorit să se utilizeze un dispozitiv de fixare lung, care va trece prin copac și va fi îngropat în peretele de susținere.
Selectarea și instalarea
Parametrii de selecție
Prețul produselor sanitare de înaltă calitate este destul de ridicat, deci, înainte de a cumpăra un astfel de produs, trebuie să examinați cu atenție toate caracteristicile sale:

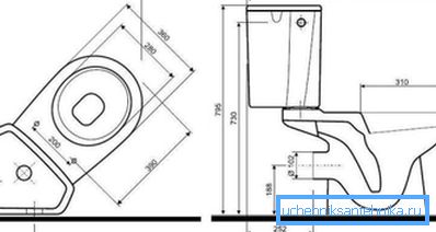
- în primul rând, trebuie să vă asigurați că dimensiunea casetei de colț vă permite să o plasați în locația selectată. O atenție deosebită trebuie acordată șanțurilor și altor conducte: uneori acestea reprezintă un obstacol serios, mai ales că nu pot fi transferate.
Fiți atenți! În cazul în care coloana este situată nu în colț, ci lângă unul dintre pereți, atunci va fi necesar să se pună un strat care să facă dificilă scurgerea.
- În al doilea rând, ar trebui să determine eyeliner. Este posibil să găsiți produse pe piață cu ambele conexiuni laterale și inferioare, deci alegerea unui model care să corespundă configurației tubulaturii în baie nu va fi dificilă.

- În al treilea rând, merită să construiți în avans structura tuturor aparatelor sanitare din cameră. Deci, putem planifica mai bine baia, iar toaleta, chiuveta, bidetul si dușul nu vor interfera unul cu altul.
Fiți atenți! Pe piață, puteți găsi toalete la colț cu un bidet-capac, ceea ce este foarte convenabil: instalarea unui astfel de design ne salvează de necesitatea de a achiziționa un dispozitiv sanitar separat.
- În ceea ce privește designul și materialele, aici alegerea este în întregime a ta și sunt determinate nu numai de designul camerei, ci și de posibilitățile financiare. Cele mai accesibile modele sunt fabricate din faianță, iar cele mai scumpe sunt din porțelan și sticlă călită.
Recomandări de instalare
În ciuda faptului că produsul descris are o structură destul de complicată, suntem destul de capabili să-l montăm cu mâinile noastre.
Toate lucrările sunt efectuate în următoarea ordine:

- În primul rând, pregătim comunicațiile: atașăm o onduleură sau un canal dur la o canal de canalizare, iar pe o conductă cu apă rece se instalează un furtun flexibil.
- Apoi, continuați să remediați produsul în sine. Structura pardoselii este instalată aproape la fel ca cea standard: pe o bază de beton sau o căptușeală din lemn cu fixare în podea cu ancore din oțel.
- Cu modelele montate va fi ceva mai dificil, dar instalarea lor poate fi facilitată de o instalație de colț pentru un vas de toaletă. Este un cadru cu o cisternă fixă și țevi, pe care este atârnat vasul de faianță.
- Instalarea este fixată cu ancore la podea și pereți, asigurând fixarea cea mai rigidă. Apoi, pe panoul frontal cu ajutorul dispozitivelor furnizate, atârnăm toaleta, conectându-l la țevile ascunse.

- Conectăm rezervorul la vasul de scurgere, asigurând etanșeitatea maximă a îmbinării. Pentru fixarea produselor folosind șuruburi metalice cu garnituri izolatoare.
- Conectați rezervorul de scurgere la furtunul de alimentare și alimentați cu apă. Dacă nu există scurgeri, efectuați o scurgere de testare, apoi închideți instalația cu un panou decorativ.
În etapa finală, instrucțiunea recomandă lubrifierea tuturor îmbinărilor cu agenți de etanșare siliconică. Partea de bază a toaletei montate pe podea trebuie tratată cu atenție, deoarece în acest moment se pot produce scurgeri.
concluzie
După cum puteți vedea, atât o ladă de toaletă cât și o colț de colț au avantaje foarte tangibile. Desigur, ar trebui să fiți foarte atenți atunci când le instalați, dar acest lucru se aplică la aproape orice instalații sanitare.
Deci, dacă vă decideți să faceți în mod independent această sarcină, atunci în chestiuni de alegere și în ceea ce privește instalarea unui vas de toaletă, ar trebui să ascultați recomandările prezentate în text și exprimate în videoclipul din acest articol.